• Albanian
  • English
Mediation, design, consulting and research in the field of wastewater and air treatment ATT&AT d.o.o.
BP GROUP d.o.o.BP GROUP d.o.o.BP GROUP d.o.o.BP GROUP d.o.o.
  • PRODUKTET
    • Programi i prodhimit I
      • Pishinat dhe teknika e pishinave
      • Ndarëse të lëngjeve të lehta
      • Depozita grumbullimi të papërshkueshëm nga uji
    • Programi i prodhimit II
      • Impiante grumbulluese të ujit të shiut
      • Nidaplast
      • Kanalet e kullimit
    • Programi i prodhimit III
      • Tanke
      • Trajtimi i ajrit
      • Pontonet
      • Shtëpi ponton
      • Lagunat
      • Qese filtri
  • PROJEKTET
    • Trajtimi i Ujit Industrial
  • LAJME
  • MBESHTETJE TEKNIKE
  • RRETH NESH
  • KONTAKT

BP ASP K O/AB 3-25 PE

  • BP ASP 300-600 PE
  • BP ASP 500-5000 B
  • BP ASP 500-800 PE
  • BP ASP K O/AB 3-25 PE
  • BP ASP K O/SN 3-25 PE
  • BP ASP N 30-150 PE
Home Impiante për trajtimin e ujërave të zeza Pajisjet anaerobe aerobike BP ASP K O/AB 3-25 PE

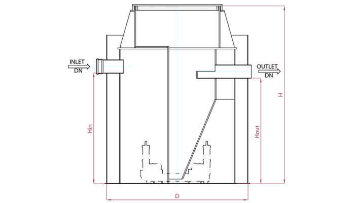
BP ASP K (3-25 PE) – është impiant biologjik i trajtimit të ujërave të zeza që përdoret për trajtimin e ujërave të zeza shtëpiake të shtëpive familjare, kompanive të vogla, hoteleve etj. kapacitet deri në 25 PE. Konsiderohet BOD5 prej 60 g në ditë për një popullsi ekuivalente (PE) dhe 150 lt. të ujërave të zeza në ditë çfarë është në përputhje me normën evropiane EN 12566-3 dhe 12255.

Vlerat e garantuara të daljes nga WWTP BP ASP K janë BOD5 25 mg/l, COD 120 mg/l.

NORMA

EN 12566-3

PËRDORIMI

Për shtëpi familjare, kompani të vogla, hotele

EMBEDDING TYPE

Embedding in road way

TË DHËNAT TEKNIKE

Lloji i WWTP PE Q(m3/day) BOD5(kg/day) D(mm) H(mm) Hin(mm) Hout(mm) DN(mm) Fuqia (W) Pesha (kg)
BP ASP 5 K O/AB 3-7 0,75 0,30 1650 2120 1320 1260 160 60 239
BP ASP 10 K O/AB 8-12 1,50 0,60 1950 2120 1320 1260 160 60 292
BP ASP 15 K O/AB 13-17 2,25 0,90 2150 2550 1850 1750 160 100 382
BP ASP 20 K O/AB 18-25 3,00 1,20 2400 2550 1850 1750 160 100 437

Borplastika Eko sh.p.k.

Rr. Kodra e Diellit. Nr. 3
Selitë, Farkë, Tirana 1001-1054

E-Mail: office@borplastikaeko.al

Mob: +355 69 392 2388

*** BP Group nuk mban përgjegjësi për ndonjë gabim të mundshëm në tekst

Privacy Policy

PARTNERË PËR DIZAJNIN 3D


W3Schools

LAJME

  • new year

    Urime për Krishtlindje dhe Vitin e Ri

    Me krenari i japim lamtumirën një viti tjetër të suksesshëm të shënuar me përpjekje, përkushtim dhe arritje që kemi arritur së bashku.

    21 December, 2023
  • BP GROUP

    BP GROUP vazhdon rritjen dhe zhvillimin e vazhdueshëm

    BP GROUP vazhdon rritjen dhe zhvillimin e vazhdueshëm në burimet e infrastrukturës dhe personelit. Progresi i cilësisë dhe inovacionet po njihen gjithnjë e më shumë nga një numër i rritur i investitorëve në nivel rajonal.

    22 September, 2023
  • Gezuar Pashket 2023

    Gezuar Pashket

    Të gjithë Klientëve, Investitorëve, Furnizuesve dhe Partnerëve të Biznesit të besimit Katolik, ju urojmë një Pashkë të Gëzuar dhe të Bekuar!

    7 April, 2023

BP GROUP

CROATIA

BP GROUP d.o.o.
Glavna 2, Kneževi Vinogradi
Tel: +385 31/730-881
E-mail: bp-group@bp-group.hr

SERBIA

Borplastikaeko d.o.o.
Čerevićka 46D/2, Novi Sad
Tel: +381 21/6312-299
E-Mail: office@borplastikaeko.rs

BOSNIA AND HERZEGOVINA

Borplastikaeko d.o.o.
Aleja Alija Izetbegovića 31, Tuzla
Tel: +387 35/279-122
E-Mail: office@borplastikaeko.ba

MONTENEGRO

Borplastikaeko d.o.o.
Kozaračka 21a, 81000, Podgorica
Tel: +382 20/240 780
E-Mail: direktor@borplastikaeko.me

NEW ZEALAND

111 View Rd | Sunnyvale
Auckland 0612
Tel : +64 21/1931-777
E-Mail: info@bor-plastika.co.nz

HUNGARY

Bolygó utca 18, Pécs
Tel: +36 72/891-363
E-mail: office@bor-plastika.eu

MACEDONIA

EHI dooel
3 Makedonska brigada bb , Skopje
Tel : +389 22/460-075
E-Mail: contact@ehi.com.mk

PARTNERET STRATEGJIKE


W3Schools


W3Schools


W3Schools


W3Schools

  • LAJME
  • MBESHTETJE TEKNIKE
  • LISTA E REFERENCAVE
  • RRETH NESH
  • KONTAKT
Copyright 2022 BP GROUP d.o.o. | All Rights Reserved
  • PRODUKTET
    • Programi i prodhimit I
      • Pishinat dhe teknika e pishinave
      • Ndarëse të lëngjeve të lehta
      • Depozita grumbullimi të papërshkueshëm nga uji
    • Programi i prodhimit II
      • Impiante grumbulluese të ujit të shiut
      • Nidaplast
      • Kanalet e kullimit
    • Programi i prodhimit III
      • Tanke
      • Trajtimi i ajrit
      • Pontonet
      • Shtëpi ponton
      • Lagunat
      • Qese filtri
  • PROJEKTET
    • Trajtimi i Ujit Industrial
  • LAJME
  • MBESHTETJE TEKNIKE
  • RRETH NESH
  • KONTAKT
  • Albanian
  • English
BP GROUP d.o.o.